Porzione di bifamiliare in vendita

Cassola, Via Andrea Palladio - San Giuseppe
€ 320.000
10 locali 10 locali
256 Mq 256 Mq
3 bagni 3 bagni

Porzione di bifamiliare in vendita

Cassola, Via Andrea Palladio - San Giuseppe

Descrizione annuncio

San Giuseppe-Quartiere Palladio

In una delle zone piĂš ricercate del comprensorio bassanese, a sud di via Ca'Baroncello, proponiamo in vendita villa bifamiliare dalle generose metrature.

Situata in un quartiere residenziale, prevalentemente composto da villette bifamiliari e singole, è l'ideale per coloro che desiderano la comodità di avere tutti i servizi a portata di mano, senza rinunciare alla tranquillità di una zona verde lontana dal caos cittadino.

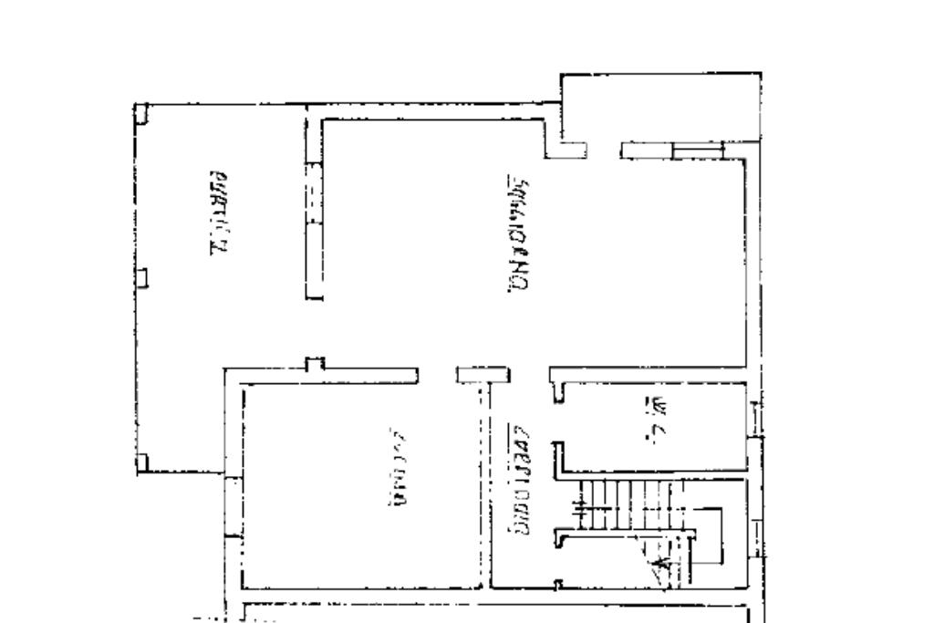
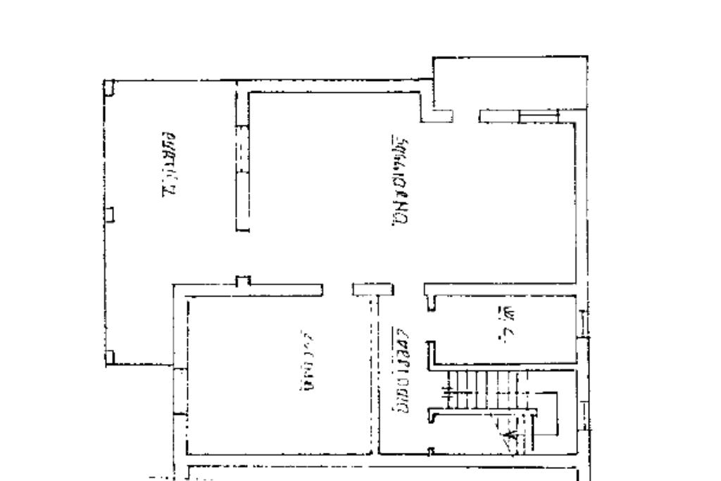
Varcando il cancello ci accoglie il giardino con un suggestivo portico travato, luogo perfetto per trascorrere momenti conviviali all'aperto. Entrati in casa, troviamo l'ampio soggiorno di oltre 40 mq, arricchito da un terrazzo che invita al relax, la cucina separata di quasi 20 mq e un bagno di servizio. La zona giorno è quindi un grande ambiente di 60 mq, il che permette di personalizzare gli spazi in base alle proprie esigenze.

Proseguendo al piano primo, la zona notte è composta da ben tre camere da letto tutte matrimoniali (di cui una con terrazzo privato), un versatile ripostiglio, da utilizzare ad esempio come cabina armadio, e un ampio bagno, pensato per offrire comfort e funzionalità.

L'interrato presenta ulteriori spazi utili: la dispensa, la taverna, la centrale termica con caldaia sostituita nel 2024, un bagno/lavanderia e il garage.

A completare la proprietĂ  un ulteriore giardino esposto a est.

Questa proprietà rappresenta un'ottima opportunità per chi è alla ricerca di una soluzione abitativa che unisca spazi con metrature generose, ormai sempre piÚ difficili da trovare, a una buona disposizione degli ambienti interni ed esterni. La posizione strategica e le interessanti caratteristiche fanno di questo immobile un investimento ideale per famiglie, coppie o professionisti.


Le visite saranno fissate previo colloquio conoscitivo in Agenzia.


Per ulteriori informazioni contattateci in Agenzia e seguiteci su Facebook, cliccando 'mi piace' sulla pagina Gruppo Tecnocasa Cassola. Scaricate gratuitamente l'App Tecnocasa sul vostro smartphone e sarete sempre aggiornati sulle nostre proposte di vendita.

Mostra tutto

Nelle vicinanze

Trasporto pubblico Trasporto pubblico
Bassano del Grappa
Bassano del Grappa
1,4 Km
Cassola - Via Ca' Baroncello 4^
Cassola - Via Ca' Baroncello 4^
180 m
Cassola - Via Ca' Baroncello 5^
Cassola - Via Ca' Baroncello 5^
300 m
Ricariche auto elettriche Ricariche auto elettriche
Magazzini Nico
1,5 Km
Bassano Piazzale Trento | EnelX
1,6 Km
Eurobrico Bassano
1,7 Km
EnelX Parcheggio Gerosa
1,9 Km
Nissan Scalcauto Group
2,6 Km
Scuole Scuole
Ic Cassola
620 m
Scuole
650 m
Elementari
890 m
Centro Parrocchiale
1,1 Km
Scuole medie Vittorelli Succursale
1,2 Km
Farmacia Farmacia
Farmacia
240 m
Farmacia comunale
1,6 Km
Farmacia del Grappa
1,6 Km
Jacopo Da Ponte
1,7 Km
Farmacia di Fellette
1,8 Km
Ospedali Ospedali
Ospedale San Bassiano - ULSS 7 Pedemontana
1,5 Km
Supermercati Supermercati
Aliper
370 m
Magazin Romanesc
590 m
ContrĂ  del Sole
960 m
Crai
1,1 Km
Iper Tosano
1,1 Km
Negozi Negozi
Negozi
310 m
Giannaè
950 m
Chicco
950 m
Montura Alpstation
960 m
Panificio Pasticceria Marinoni
1,1 Km
Bar Bar
Patagonia
240 m
Geco's Bar
480 m
Bar
910 m
Risto Bar Shake
920 m
Rich
970 m
Ristoranti Ristoranti
Alla Polveriera
430 m
Locanda Casanova
540 m
Ristorante Pizzeria Primavera
920 m
Pizzeria alla Torre
990 m
Johnny Gallo
1,0 Km
Mostra tutto

Caratteristiche

Rif.:
61128323
Piano:
2 di 2 (Piano su piĂš livelli)
Box:
1
Posti auto:
2
Terrazzi:
2
Camere da letto:
3
Mostra tutto
Prezzo Prezzo
€ 320.000
Rata mutuo Rata mutuo
€ 1.510 / mese
Spese annue Spese annue
€ 0
Proponi il tuo prezzoProponi il tuo prezzo

Classe Energetica

F
F
F
F
F
F
F
F
F
EP globale non rinnovabile:
230.00 kW h/m² anno
EP invernale del fabbricato:
EP estiva del fabbricato:
Anno di costruzione:
1982
Riscaldamento:
Autonomo
Tipo impianto:
A radiatori
Tipo alimentazione:
Metano

Ti interessa visionare l'immobile?

Fissa un appuntamento  Fissa un appuntamento

Richiedi informazioni

Clicca su Leggi per aprire l'informativa
* Questi campi sono obbligatori

Calcola il tuo mutuo

Semplice e senza impegno
Anticipo

( % )
Mutuo

( % )

pochi semplici passi

inserisci i tuoi dati
Questionario completato
Grazie per aver richiesto un appuntamento senza impegno con un nostro Consulente del Credito e Assicurativo.

Hai inserito correttamente tutti i dati necessari e a breve riceverai una e-mail con un link da convalidare per inviare i tuoi dati.
Affiliato
Loca Srl
Via Calibri, 75 36022 Cassola (VI)
Via Calibri, 75 36022 Cassola (VI)
Zona: Cassola - San Giuseppe - San Zeno
Mostra su mappa
Orari: Dal LunedĂŹ al venerdĂŹ dalle 9:00 alle 12:30 e dalle 14:30 alle 19:00. Il sabato solo mattina. E' vivamente consigliato chiamare per fissare un appuntamento. Durante le festivitĂ  gli orari potrebbero subire delle modifiche.
Affiliato
Loca Srl
Via Calibri, 75 36022 Cassola (VI)

2025 Tecnocasa Franchising S.p.A. - P. IVA 08365160152 - Via Monte Bianco 60/A 20089 Rozzano (MI). Ogni agenzia ha un proprio titolare ed è autonoma. Privacy policy | Policy utilizzo | Cookie policy