Quadrilocale in vendita

Cassola, Martiri del grappa
€ 145.000
4 locali 4 locali
145 Mq 145 Mq
2 bagni 2 bagni

Quadrilocale in vendita

Cassola, Martiri del grappa

Descrizione annuncio

Cassola.

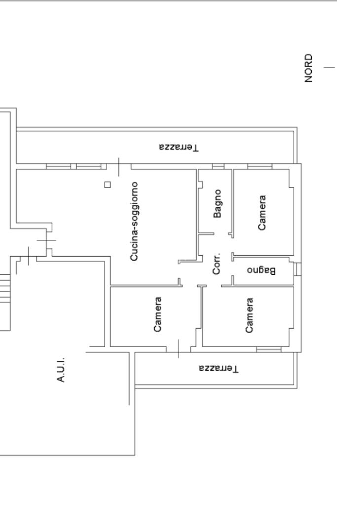
In centro al comune, servito dai principali servizi di quartiere, proponiamo in vendita appartamento dalle generose metrature sito al piano secondo ed ultimo, servito da ascensore.

L’immobile risulta particolarmente comodo alle esigenze di una famiglia, data l’ottima disposizione degli spazi interni.

L’ingresso conduce a una spaziosa e luminosa zona giorno di circa 50 mq, impreziosita da un camino a legna e con accesso a un terrazzo abitabile di circa 28 mq che si affaccia direttamente sulla piazza del paese. Il terrazzo è inoltre predisposto per l’installazione di un barbecue, offrendo un ambiente ideale per momenti di convivialità.

Tornando in casa ci dirigiamo, attraverso il disimpegno, nella zona notte composta da tre camere da letto, tutte matrimoniali di cui una con accesso ad un secondo terrazzo di 15 mq, due bagni entrambi finestrati: uno con vasca e uno con lavanderia e doccia.

L’immobile è dotato di climatizzatore.

Al piano interrato, completa la proprietà il garage

L’appartamento necessita di alcuni lavori di ristrutturazione che permettono di personalizzare gli ambienti a proprio piacimento.

Il valore aggiunto di questa soluzione è dato indubbiamente dalla posizione strategica e centrale, ideale per chi cerca la comodità dei servizi senza l’utilizzo dell’auto. Infine, gli spazi interni offrono dalle metrature particolarmente abbondanti, adatte ad accogliere amici e parenti.

Informazioni e visite immobiliari previo appuntamento in ufficio.

Per ulteriori informazioni contattateci in Agenzia e seguiteci su Facebook, cliccando 'mi piace' sulla pagina Gruppo Tecnocasa Cassola. Scaricate gratuitamente l'App Tecnocasa sul vostro smartphone e sarete sempre aggiornati sulle nostre proposte di vendita.

Mostra tutto

Nelle vicinanze

Trasporto pubblico Trasporto pubblico
Cassola
Cassola
180 m
Rosà
Rosà
2,2 Km
Cassola - Capolinea
Cassola - Capolinea
20 m
Trasporto pubblico
30 m
Ricariche auto elettriche Ricariche auto elettriche
Magazzini Nico
3,0 Km
Nissan Scalcauto Group
3,0 Km
Scuole Scuole
Scuole
110 m
Scuola Primaria Maria Bambina
2,0 Km
English school
2,0 Km
Scuola Elementare Flli Ferronato
2,0 Km
Farmacia Farmacia
Farmacia di Cassola
220 m
Farmacia
2,8 Km
Supermercati Supermercati
San Marco Center
600 m
Coop
2,4 Km
Conad
2,4 Km
Prix
2,6 Km
Maxì
2,6 Km
Negozi Negozi
Favero abbigliamento
690 m
Moretti Panificio
2,8 Km
Casa del Detersivo
2,9 Km
Sorelle Ramonda
3,0 Km
Nico abbigliamento
3,0 Km
Bar Bar
Sesta Luna
320 m
Roxy Bar
610 m
Queen bar
1,3 Km
Caffè Vero
1,3 Km
Fame bar
2,1 Km
Ristoranti Ristoranti
Trattoria alla Stazione
150 m
Ristorante Al Corallo
450 m
Pizzeria Mexs
1,4 Km
Il Pioppeto
2,0 Km
Erio's Pizza
2,1 Km
Mostra tutto

Caratteristiche

Rif.:
61189902
Piano:
2 di 2 con ascensore (Piano alto)
Box:
1
Terrazzi:
2
Camere da letto:
3
Arredamento:
Assente
Mostra tutto
Prezzo Prezzo
€ 145.000
Rata mutuo Rata mutuo
€ 684 / mese
Spese annue Spese annue
€ 1.200
Proponi il tuo prezzoProponi il tuo prezzo

Classe Energetica

E
E
E
E
E
E
E
E
E
EP globale non rinnovabile:
130.53 kW h/m² anno
EP invernale del fabbricato:
EP estiva del fabbricato:
Anno di costruzione:
1981
Riscaldamento:
Autonomo
Tipo impianto:
A radiatori
Tipo alimentazione:
Metano

Ti interessa visionare l'immobile?

Fissa un appuntamento  Fissa un appuntamento

Richiedi informazioni

Clicca su Leggi per aprire l'informativa
* Questi campi sono obbligatori

Calcola il tuo mutuo

Semplice e senza impegno
Anticipo

( % )
Mutuo

( % )

pochi semplici passi

inserisci i tuoi dati
Questionario completato
Grazie per aver richiesto un appuntamento senza impegno con un nostro Consulente del Credito e Assicurativo.

Hai inserito correttamente tutti i dati necessari e a breve riceverai una e-mail con un link da convalidare per inviare i tuoi dati.
Affiliato
Loca Srl
Via Calibri, 75 36022 Cassola (VI)
Via Calibri, 75 36022 Cassola (VI)
Zona: Cassola - San Giuseppe - San Zeno
Mostra su mappa
Orari: Dal Lunedì al venerdì dalle 9:00 alle 12:30 e dalle 14:30 alle 19:00. Il sabato solo mattina. E' vivamente consigliato chiamare per fissare un appuntamento. Durante le festività gli orari potrebbero subire delle modifiche.
Affiliato
Loca Srl
Via Calibri, 75 36022 Cassola (VI)

2026 Tecnocasa Franchising S.p.A. - P. IVA 08365160152 - Via Monte Bianco 60/A 20089 Rozzano (MI). Ogni agenzia ha un proprio titolare ed è autonoma. Privacy policy | Policy utilizzo | Cookie policy